Eingabehilfen öffnen

Zum Hauptinhalt springen
Projekte

Fördertechnik und Schachtbauausrüstungen für das Abteufen ultratiefer Schächte am Beispiel der laufenden Projekte WS-10 und SKS-1 in Norilsk

Ausführungsort

Impressionen

Projektbeschreibung

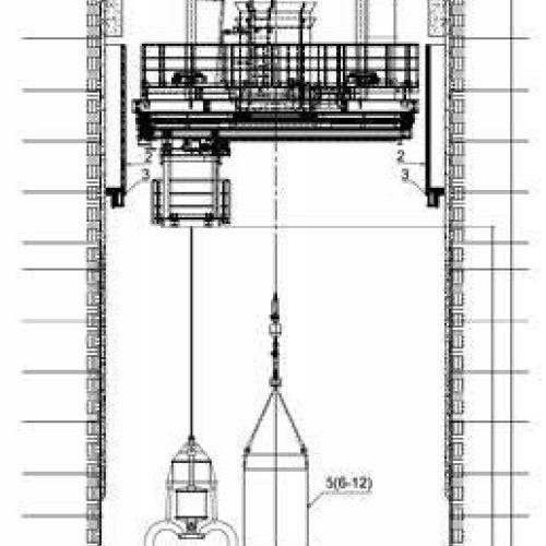
Das Teufen und Auskleiden von Bergwerksschächten zum Aufschluss von Lagerstätten mineralischer Rohstoffe sowie von Schächten für zivile Ingenieurbauwerke stellt mit zunehmender Teufe für Bauherrn, Projektant und Unternehmer eine große Herausforderung dar.

  • Dauer
    2006–2019
  • Land
    Russland
  • Auftraggeber
    OJSC MMC Norilsk Nickel

THYSSEN SCHACHTBAU GMBH
Ein Unternehmen im THYSSEN SCHACHTBAU Konzern

  • Diese E-Mail-Adresse ist vor Spambots geschützt! Zur Anzeige muss JavaScript eingeschaltet sein.