Eingabehilfen öffnen

Zum Hauptinhalt springen
Projekte

Harte Brocken für Mensch und Maschine

Ausführungsort

Impressionen

Projektbeschreibung

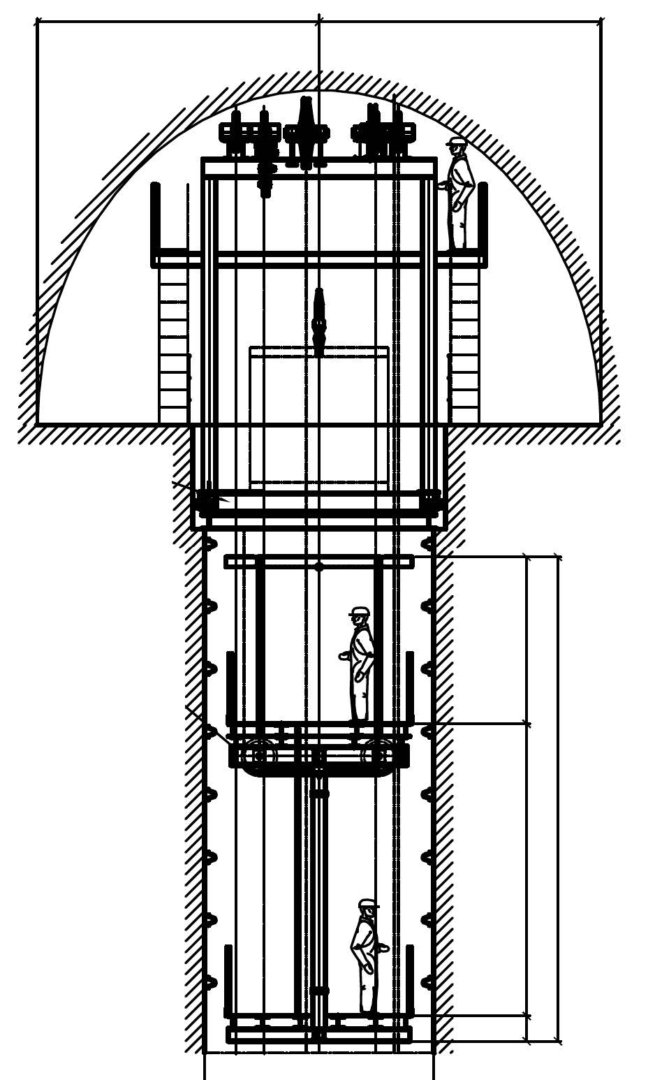
Im Juli 2008 schrieb die RAG das Teufen eines Blind - schachtes auf dem Bergwerk West aus. Seit vielen Jahren gelang es der Bietergemeinschaft „Wetter bohrloch F275“ – bestehend aus der THYSSEN SCHACHTBAU GMBH und der Deilmann-Haniel Shaft Sinking GmbH – von der RAG mit vertikalen Ausrich tungs vorhaben beauftragt zu werden. Auch bei diesem anspruchsvollen Bauvorhaben vertraute der Auftraggeber auf die Erfahrung und Fachkenntnis dieser Arbeitsgemeinschaft.

  • Dauer
    2008–2010
  • Land
    Deutschland
  • Auftraggeber
    RAG Aktiengesellschaft

THYSSEN SCHACHTBAU GMBH
Ein Unternehmen im THYSSEN SCHACHTBAU Konzern

  • Diese E-Mail-Adresse ist vor Spambots geschützt! Zur Anzeige muss JavaScript eingeschaltet sein.